<
>
1 - 11
Haz la diferencia. © Tres9
anterior
Proyectos
Principios
Oficina
siguiente
PROYECTOS
PRINCIPIOS
OFICINA
X
<
>
3 - 11
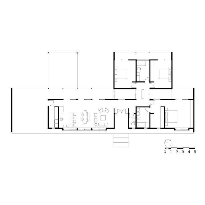
LA CASA DE NATALIA Y PATRICIO